THE FLOATING WATER WORKSHOP

A Living Laboratory for Urban Wildlife, Play, and Discovery on the Delaware River


 
 

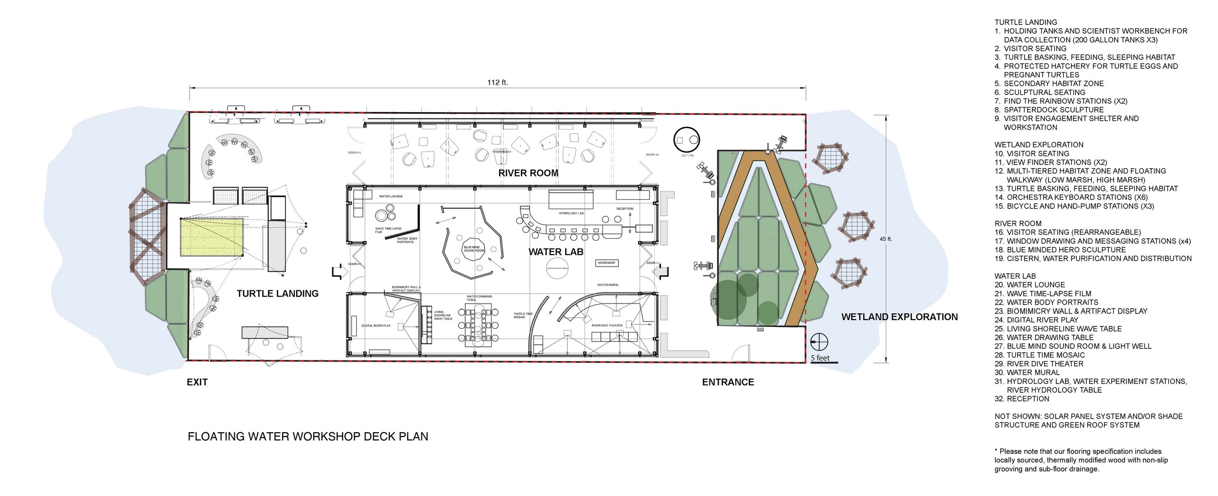
The Floating Water Workshop is a living, immersive environment designed to reconnect people with the vital systems that sustain life—inviting visitors into a journey of discovery, participation, and transformation along the water’s edge. Rooted in the concept of an “aquatic commons,” it brings together ecology, design, and community to model a regenerative future.

Project Overview

The Floating Water Workshop is a living, immersive environment designed to reconnect people with the systems that sustain life—inviting visitors into a journey of discovery along the water’s edge. Rooted in the idea of an “aquatic commons,” the experience begins with the Wetland Walk, a regenerative tidal marsh that reveals the river as a thriving nursery of biodiversity while demonstrating technologies that restore ecological health. Visitors engage directly—generating energy, creating soundscapes, and exploring the evolving story of the river.

This journey continues at Turtle Landing, a hands-on field station where visitors, students, and researchers collaborate in ecological restoration through turtle habitat monitoring and mussel cultivation. Here, participation supports real-world science and stewardship.

At the core is the Interior Classroom, an interactive space where water becomes both medium and teacher. Through immersive exhibits and collaborative learning, visitors explore solutions in conservation, renewable energy, and climate resilience. This space also serves as a hub for dialogue and community gathering.

The experience culminates in the River Room, a reflective space for conversation, creativity, and connection—where visitors integrate what they’ve learned and imagine new possibilities together.

Together, these spaces form a living model for how people can partner with nature—fostering stewardship, innovation, and a deeper sense of belonging within the web of life.

Wetland Walk

The Wetland Walk invites visitors into a living “aquatic commons,” where land, water, and community meet in a shared space of discovery and stewardship. This tidal marsh garden reveals the hidden nursery of the river—supporting freshwater life and migrating ocean species—while demonstrating innovative, sustainable technologies that actively restore ecological health.

Through immersive, hands-on experiences, visitors become participants rather than observers: generating energy to nourish the wetlands, composing soundscapes from the biodiversity of the Delaware River Watershed, and witnessing the river’s past, present, and future through dynamic visual storytelling.

As both a living laboratory and a regenerative system, the Wetland Walk models a new relationship with nature—one rooted in reciprocity, education, and the flourishing of life.

Interior Classroom

The Interior Classroom is the living heart of the Floating Water Workshop—a dynamic space where hands-on play and immersive storytelling awaken curiosity, creativity, and connection. Here, visitors are invited to explore the hidden worlds beneath our rivers through interactive water exhibits, collaborative experimentation, and sensory-rich experiences that engage both mind and imagination.

Blending science, art, and ecological design, this space brings contemporary solutions to life—from water conservation and habitat restoration to renewable energy and climate resilience—transforming complex ideas into tangible, playful discovery.

Designed for both self-guided exploration and facilitated learning, the classroom seamlessly evolves into a gathering space for dialogue, events, and collective visioning. In this space, learning flows like water—awakening not just knowledge, but a deeper sense of wonder, responsibility, and belonging.

River Room

The River Room is a space of pause, perspective, and connection—where the flow of ideas mirrors the river just beyond its view. Framed by sightlines into the vibrant classroom and outward to the surrounding cityscape, this welcoming, intergenerational gathering space invites reflection, conversation, and creative expression.

Designed as both a maker space and a sanctuary for dialogue, it encourages visitors to process their experiences, share stories, and imagine new possibilities together. Here, learning settles into meaning, and inspiration begins to take form—bridging inner awareness with collective action for a more connected and sustainable future.

Project Partners

This project is led by Habithèque Inc., specialists in experience planning and design, and made possible by a diverse team of experts in conservation, engineering, education, and public art:

  • Biohabitats – Ecological restoration and integrated water strategies

  • Gecko Group, Hands On! Studio – Graphic and exhibit architectural design

  • FableVision – Media design and development

  • Karen Lefkovitz – Education and curriculum

  • Stemann Pease Architecture, Architectural and Structural Engineering Services

  • Studio Sustena – Landscape architecture and civil engineering

  • Meliora Design – Sustainable site design and water resources

  • Urban Engineers, Elliot Bay – Marine and naval engineering

  • Mark B. Thompson & Associates – Historic preservation

  • 15 Minutes Inc. – Cause-related marketing, advertising, and PR

Turtle Landing

The Turtle Landing is a living field station where science comes alive through participation, curiosity, and care. Designed as a long-term turtle monitoring and habitat restoration initiative, this space invites visitors to witness and contribute to real-time ecological research alongside scientists and students.

Here, learning becomes action—supporting the protection of vital nesting habitats while deepening our understanding of freshwater ecosystems. Integrated with the Floating Water Workshop’s mussel hatchery and living laboratory, Turtle Landing also offers hands-on experiences in mussel cultivation and life-cycle restoration, revealing the intricate web of life beneath the water’s surface.

By bridging research, education, and public engagement, this space empowers each visitor to become a steward of biodiversity and a partner in the regeneration of our waterways.

Gather, Reflect, Recharge

Visitors will find spaces to relax, reflect, and connect throughout the Workshop. Reconfigurable seating in the Water Lounge and River Room invites conversation, creativity, and pause, while views into Turtle Landing offer moments of quiet observation and connection to ongoing research.

Roofed areas with solar panels and green roofs provide comfort while supporting urban habitat for birds, bees, and butterflies.

Ongoing Community Involvement

The Floating Water Workshop offers ongoing ways to stay connected—from turtle monitoring updates to repeat visits that reveal the site’s evolution over time. Conservation is a shared effort, and every visitor plays a role in sustaining these living systems.

Experiential Learning for All

Working at the intersection of creativity, science, and public engagement, the Workshop bridges urban and aquatic environments through immersive learning experiences.

Exhibits include multimedia installations, interactive water systems, living habitats, and hands-on play—inviting visitors of all ages to explore, experiment, and connect with the river in meaningful ways